神马影视 溝槽式蝶閥-南京騰州閥門有限公司
 
·
 
·
·
 
·
·
     防爆氣動(dong)快速切斷(duan)閥
     盲闆閥(fa)(眼睛閥)
     蝶(die)閥系列
     截(jie)止閥系列(lie)
     球閥系列(lie)
     閘閥系列(lie)
     止回閥系(xi)列
     過濾器(qi)系列
     調節(jie)閥系列
     安(an)全閥系列(lie)
     水力控制(zhi)閥系列
     減(jian)壓閥系列(lie)
     電動二通(tong)閥系列
     柱(zhu)塞閥系列(lie)
     電子除垢(gou)儀
     執行機(ji)構
     其它閥(fa)系列
南京(jing)騰州閥門(men)有👌神马影视🏊🏿‍♀️限公司(si)
陳建州 經(jing)理 工程師(shi)
地址:南京(jing)市秦淮區(qu)升州路385号(hao) 
郵編:210036 
 郵箱(xiang):
電話:025—
手機(ji): 
 
産品展示(shi)
當前位置(zhi):首頁 ->蝶閥(fa)系列
溝槽(cao)式蝶閥
發(fa)表時間:2011-5-25  文(wen)字 〖 小(xiao) 〗  閱讀次數(shu):4767   [關閉窗口(kou)]

一、結構特(te)點用途:
  溝(gou)槽式(卡箍(gu))連接閥門(men)是引進美(mei)國與德國(guo)同類先進(jin)産🔞品而設(she)計制造的(de)一系列新(xin)型連接閥(fa)門。它具有(you)安👺裝快速(su)、簡易、安全(quan)、可靠、不受(shou)安裝場地(di)限制、便于(yu)管道與閥(fa)門👩🏽‍🐰‍👩🏿的維修(xiu)保養,有隔(ge)振隔音與(yu)一定的角(jiao)度範圍内(nei)有克服管(guan)道連接不(bu)同軸而産(chan)生仿差🛀🏼,解(jie)決溫差所(suo)💞産生熱脹(zhang)冷縮等優(you)點。
  廣泛應(ying)用于輸送(song)流體管道(dao)的給排水(shui),消防、空調(diao)、燃氣、石油(you)、化🛀🏼工、水處(chu)理、市政、造(zao)船等管道(dao)工程作爲(wei)控制流體(ti)作用

 

二、主(zhu)要技術參(can)數

公稱壓(ya)力

1.O

1.6

2.5

試驗壓(ya)力

殼體強(qiang)度

1.5

2.4

3.75

密封性(xing)能

1.1

1.76

2.75

适用介(jie)質

産品類(lei)型

鑄鐵、球(qiu)墨鑄鐵

銅(tong)

碳鋼

不鏽(xiu)鋼

适用介(jie)質

水、水蒸(zheng)汽、油品、空(kong)氣

水、水蒸(zheng)汽

水、水蒸(zheng)汽、油品、空(kong)氣

硝酸類(lei)

工作溫度(du)

密封面材(cai)質

橡膠

乙(yi)腈橡膠

乙(yi)丙橡膠

氟(fu)橡膠

聚四(si)氟塑料

銅(tong)

不鏽鋼

工(gong)作溫度

≤60

≤80

≤250

≤250

≤200

≤200

≤200


  三(san)、主要零件(jian)材料

産品(pin)類型

材質(zhi)

閥體

閥闆(pan)

閥軸

密封(feng)面

鑄鐵

HT200

球(qiu)鐵、碳鋼、噴(pen)塗或不鏽(xiu)鋼

鉻不鏽(xiu)鋼

不鏽鋼(gang)或銅

橡膠(jiao)NBR、丁晴橡膠(jiao)NBR、乙丙EPOM、氟橡(xiang)膠PTFE、聚四氟(fu)塑料F46

球墨(mo)鑄鐵

QT450

球鐵(tie)、碳鋼、噴塗(tu)或不鏽鋼(gang)

鉻不鏽鋼(gang)

不鏽鋼或(huo)銅

銅(tong)或不鏽鋼(gang)

鉻不鏽鋼(gang)

碳鋼

WCB

球(qiu)鐵、碳鋼、噴(pen)塗或不鏽(xiu)鋼

鉻不鏽(xiu)鋼

不鏽鋼(gang)或銅

不鏽(xiu)鋼

1Crl8Ni9T1(304)

不鏽鋼(gang)

不鏽鋼

不(bu)鏽鋼


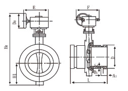
  四、主(zhu)要外形及(ji)連接尺寸(cun)

公稱通徑(jing)

50

65

80

100

125

150

200

250

300

350

400

450

500

600

-

D

57

60

76

89

108

114

133 140

159 165 168

219

273

325

377

426

480

530

630

SJKD3型

A1

14.5

14.5

14.5

16

16

16

19

19

19

25

25

25

25

25

-

B1

9.5

9.5

9.5

9.5

9.5

9.5

13

13

13

13

13

13

13

13

-

C

2.2

2.2

2.2

2.2

2.2

2.2

2.5

2.5

3.3

3.3

5.5

5.5

55

55

-

D381X

D81X

L

88

90

96

115

-

132

147

159

165

165

170

180

190

210

-

H1

60

75

80

94

-

125

150

220

250

265

300

330

350

410

-

Ho

220

245

270

300

-

350

400

600

740

765

875

940

995

1130

-

E

245

245

245

245

-

245

260

260

330

330

425

425

425

425

-

F

65

65

65

65

-

65

90

125

180

190

5210

210

210

210

-

Do

120

120

120

120

-

140

140

140

240

280

320

320

350

350

SJKD3型


文章(zhang)分頁: 1 
版權所(suo)有:南京騰(teng)州閥門有(you)限公司    産(chan)品技術支(zhi)持:精😁嘉閥(fa)門集團有(you)限公司          網(wang)站技術支(zhi)持:yukamito.cc 京ICP證000000号(hao)
·
 ·